Používame cookies

Súbory cookie a ďalšie technológie sledovania používame na zlepšenie vášho zážitku z prehliadania našich webových stránok, na to, aby sme vám zobrazovali prispôsobený obsah a cielené reklamy, na analýzu návštevnosti našich webových stránok a na pochopenie toho, odkiaľ naši návštevníci prichádzajú. Viac info

ARETÉ REAL - PRENÁJOM 36 m2 KOMERČNÉHO PRIESTORU, PEZINOK, HOLUBYHO

  • Exkluzívna ponuka

Popis nehnuteľnosti

Zdieľať na Facebooku

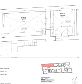
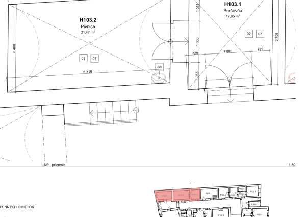
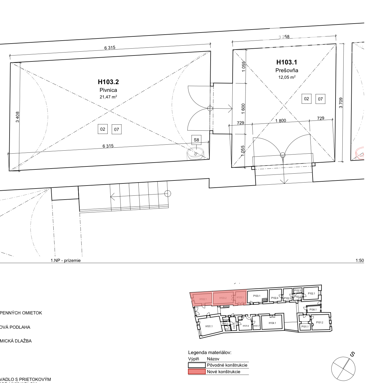
Exkluzívne len u nás! Naša realitná kancelária Areté real Vám ponúka na prenájom komerčný priestor v priamom centre Pezinka na Holubyho ulici 24, v prechodnej pasáži na Potočnú ulicu. Podlahová plocha priestoru je 33,52 m2, navyše príslušenstvo k priestoru tvorí podiel na spoločných pánskych a dámskych toaletách v rámci pasáže 2,76 m2, nachádza sa na prízemí národnej kultúrnej pamiatky vinohradníckeho domu, má vstup z vnútra nákupnej pasáže, pozostáva z dvoch miestností po kompletnej rekonštrukcii. Priestor je voľný ihneď. 

Dispozícia priestoru:

- Vstupná predajná miestnosť so vstupom z dvora pasáže (12,05 m2),

- predajňa / sklad (21,47 m2),

- podiel na dámskych a pánskych toaletách (2,76 m2).

Vybavenie priestoru:

- Vstupná miestnosť má vysoký klenbový strop, strop a steny sú omietnuté s maľovkou, podlaha je pokrytá keramickou dlažbou. Vykurovanie miestnosti je podlahové elektrické,

- pivnica má tehlový klenbový strop, podlaha je pokrytá čadičovou dlažbou s bočným LED osvetelnim. Táto meistnosť má prívod studenej vody, nerezové umývadlo. Vykurovanie priestoru je možné elektrickým radiátorom, 

- možnosť reklamného označenia na svetelnom paneli umiestnenom na vonkajšej vstupnej stene priestoru.

Poloha priestoru:

Nachádza sa v centre mesta Pezinok, ktoré disponuje kompletnou občianskou vybavenosťou. Mesto Pezinok disponuje výbornou dostupnosťou do okolitých miest a obcí. Mesto Pezinok leží na úpätí Malých Karpát, poskytuje svojim obyvateľom množstvo kultúrnych podujatí, turistiky a zelene. V meste sa nachádza zdravotné stredisko, lekáreň, obchodný dom, pošta, pekáreň, supermarkety, reštaurácie, materské školy, gymnázium, kultúrny dom a aj obľúbený zámok Šimák a Zámocký park. 

Cena 360 €/mesiac + energie.

Depozit je vo výške jednomesačného nájmu.

Províziu RK neplatíte!

Kontakt: 0911/247 257

Vlastnosti

Status:
aktívne
Vlastníctvo:
osobné
Úžitková plocha:
36 m2
Podlahová plocha:
36 m2
Stav:
úplne prerobený
Počet izieb:
2
Typ budovy:
zmiešané
Typ výbavy:
čiastočne vybavený
Rok poslednej rekonštrukcie:
2003
Počet poschodí od prízemia vyššie:
1
Pozícia:
suterén
Celková plocha:
36 m2
Orientácia:
juh
Inžinierske siete:
áno
Voda:
áno
Elektrika:
áno
Kanalizácia:
áno
Voda - na pozemku:
áno
Elektrika - na pozemku:
áno
Elektrika - na pozemku - 230 V:
áno
Kanalizácia - na pozemku - kanalizácia:
áno
Vykurovanie - centrálne:
áno
Vykurovanie - podlahové:
áno
Optická sieť:
áno
360 €/mesiac + energie
Ulica: Holubyho 24
Obec: Pezinok
Okres: Pezinok
Kraj: Bratislavský kraj
Druh: Priestory
Typ: Prenájom
Typ objektu: Obchodné priestory

René Bednarič

  • Slovensky
  • Česky
  • English
  • Pусский
  • Polskie

Radi Vám poradíme